Back to properties
Enquire Now
 

Preston New Road, Blackburn

Ref:

Guide Price £325,000

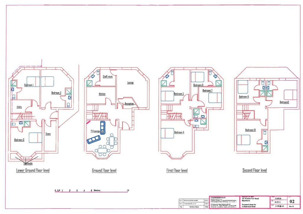
A fantastic opportunity to acquire this extremely large extended end of terrace property which has the potential for a HMO, offices or apartments subject to planning permission and is located closeby to Blackburn Town Centre. 

 
Key Facts
Property Description
 
  • Key Facts

    • 0 Bedrooms
    • 0 Bathrooms
    • IDEAL INVESTMENT OPPORTUNITY
    • POTENTIAL FOR A HMO, OFFICES OR APARTMENTS SUBJECT TO PLANNING PERMISSION
    • LARGE END OF TERRACE WHICH HAS BEEN EXTENDED
    • 16 ROOMS
    • GARDEN FRONTED
    • DRIVEWAY FOR 3 CARS
    • COUNCIL TAX BAND D - EPC RATING F
    • CLOSEBY TO THE AL-BURAQ MASJID MOSQUE
    • GARDEN TO THE REAR WHICH HAS BEEN PAVED - ALSO PARKING SPACE AT THE REAR FOR 6 CARS
    • RE WIRED - FIRE ALARMS IN EVERY ROOM - GROUND FLOOR HAS SEPARATE ENTRANCE
  • Property Description

    A fantastic opportunity to acquire this extremely large extended end of terrace property which has the potential for a HMO, offices or apartments subject to planning permission and is located closeby to Blackburn Town Centre. 

     The property has a total of 16 rooms and viewings are highly recommended!!!

    The property is garden fronted with a driveway for 3 cars, there is a garden to the rear which is paved. The property is closeby to local amenities and Al-Buraq Masjid Mosque.

    There is some work required to the property and once finished could provide a fantastic yield. The property also has the potential to be a large family home.


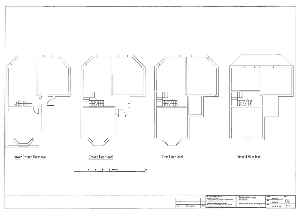
    The accomodation comprises of the following:

    Ground Floor

    There are steps that lead to the ground floor.

    Room 
    Dimensions: 5.65m x 3.65m
    The room comprises of: uPVC double glazed window, ceiling light point, fully replastered and concrete to the floor.

    Room 
    Dimensions: 3.8m x 3.0m
    The room comprises of: uPVC double glazed windows x 2, ceiling light point x 2, new plaster board, concrete to the floor.

    Room 
    Dimensions: 2.6m x 1.5m
    This room comprises of: Ceiling light point, part tiled to the walls and concrete to the floor. 

    Room 
    Dimensions: 4.42m x 4.0m
    This room comprises of: uPVC double glazed window, ceiling light point, mainly plastered and concrete to the floor.

    Storage Area
    Dimensions: 8.3m x 1.6m
    The storage area has concrete to the floor.

    Hallway
    Dimensions: 2.0m x 1.4m
    The hallway comprises of: External wooden door that leads out to the side of the property.
     
    First Floor


    Entrance

    Dimensions: 2.0m x 1.4m
    The entrance comprises of: uPVC double glazed window, external uPVC door, ceiling light point, original feature coving and tiles to the floor.

    Hall
    Dimensions: 6.0m x 2.5m
    The hall comprises of: uPVC double glazed window, ceiling light points x 2, stairs to the first floor, original coving and tiles to the floor.

    Room 
    Dimensions: 5.1m x 4.2m
    This room is to the front of the property and comprises of: uPVC double glazed bay window, ceiling light point and floor boards to the floor.

    Room 
    Dimensions: 5.6m x 4.0m 
    This room comprises of: uPVC double glazed window x 3, internal wooden door, ceiling light point x 2 and floor boards to the floor.

    Room
    Dimensions: 3.5m x 4.0m 
    The room comprises of: uPVC double glazed windows x 2, internal wooden door, ceiling light point, floor boards to the floor.

    Second  Floor

    Landing
    Dimensions: 4.4m x 1.75m
    The landing comnprises of: uPVC double glazed window, ceiling light point, fully re plastered and floor boards to the floor.

    Room 
    Dimensions: 4.0m x 3.40m
    This room comprises of: uPVC double glazed windows x 2, internal wooden door, ceiling light point, floor board to the floor.

    Room 
    Dimensions: 5.5m x 3.8m 
    This room comprises of: uPVC double glazed windows x 3 , internal wooden door, ceiling light x 2, floor boards to the floor.

    Room 
    Dimensions: 5.2m x 4.2m
    This room comprises of: uPVC double glazed bay window, internal wooden door, ceiling light point, fully re plastered, floor boards to the floor.

    Room  (potential to be a bathroom)
    Dimensions: 2.8m x 1.3m
    This room comprises of: Internal wooden door, ceiling light point, partly tiled to the walls, floor boards to the floor.

    Third Floor

    Room 

    Dimensions: 4.2m x 4.0m 
    This room comprises of: uPVC double glazed window, internal wooden door, fully re plastered, floor boards to the floor.

    Room 
    Dimensions: 4.15m x 3.75m 
    This room comprises of: uPVC double glazed window, ceiling light point, fully replastered, floor boards to the floor.

    Room  (potential to be a bathroom)
    Dimensions: 2.0m x 1.67m
    This room comprises of: uPVC double glazed velux window,  internal wooden door, part tiled to the walls, floor boards to the floor.

    Room 
    Dimensions: 3.3m x 2.8m
    This room comprises of: uPVC double glazed window, internal wooden door, floor boards to the floor. 


    FOR SALE BY AUCTION: Starting Bids £325,000. Terms and conditions apply.
    Being Sold via Secure online bidding.




    All descriptions in this brochure are the opinions of Crown Estate and Letting Agents and their employees with any additional information advised by the seller. Properties must be viewed in order to come to your own conclusions and decisions. Although every effort is made to ensure measurements are correct, please check all dimensions and shapes before making any purchases or decisions reliant upon them. Please note that any services, appliances or heating systems have not been tested by Crown Estate and Letting Agents and no warranty can be given or implied as to their working order.





     

Enquire

Please fill out the form below and we'll get back to you A.S.A.P.

×
1
1
1
×